Poštovana gospodjo Petronijević,

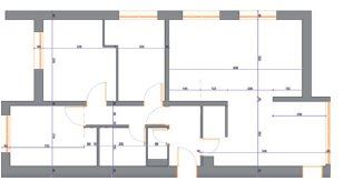
Stan za četvoročlanu porodicu ima površinu 90 m2. Jedna spavaća soba je zaista mala, a mi bismo voleli da oba deteta imaju sobe zadovoljavajuće veličine, pa smo razmišljali o proširenju najmanje sobe... Kupatilo je malo i ima loš rapored. Dnevno-trpezarijski deo je dugačak i s puno otvora. U ovaj deo moraćemo da smestimo i radni kutak...

Hvala unapred,
Marina

Poštovana Marina,

Kupatilo možete da povećate na račun spavaće sobe; dovoljno je samo 30 tak cm, čime dobijate solidan prostor u kupatilu, a takodje ostaje i prostor u spavaćoj sobi za garderober (krevet je širok 160 cm). Manju sobu možete da proširite pomeranjem zida maksimalno do vrata druge sobe.

Od lodje možete da napravite kuhinju, s tim da izlaz ostavite slobodan. U kuhinju možete da smestite i manji sto za obedovanje. Prostor sadašnje kuhinje može da bude biblioteka s radnim stolom. Radni sto možete da ugradite u biblioteku, u smislu stola na izvlačenje ili sklapanje, a može da bude i fiksni, kao na crtežu.

Dnevni boravak i trpezarija nalaze se u prostoru sadašnjeg dnevnog boravka. Iako je trpezarija udaljena od kuhinje, konfiguracija stana je takva da je širi prostor u delu budućeg dnevnog boravka odredjen stubom sadašnje ostave, koji se koristi da primi panel s TV policom. Time dobijamo kompaktan dnevni boravak, s povećanom dubinom za radni deo i biblioteku. 

Takodje, ovim rešenjem i trpezarija dobija prirodno svetlo, kao i lep pogled kroz prozor. Kod ulaza dobijate još jedan plakar, koji može da primi i deo opreme (usisivač, daska za peglanje).

dipl. ing. arh. Olivera Petronijević,
vlasnica studija MSPRO za projektovanje, dizajn i
završne radove u gradjevinarstvu


Iako površinski veliki, ovaj stan ne ispunjava sve zahteve ukućana, tako da arhitekta predlaže izmeštanje nekih prostorija i davanje novih funkcija u okviru postojećih celina. Trpezarija je dobila prirodno svetlo i lep pogled kroz prozor. Foto: LepaiSrecna