Ako vam je kuća postala tesna i maštate o komfornom domu, onda je ova ideja nadogradnje uz porodičnukuću idealan plan za vaš dom, piše Lepa & srećna.

Belgijska arhitektonska kompanija MAMOUT architectes imala je težak zadatak, da u okviru tradicionalne spratne kuće napravi dodatan prostor koji će ispuniti sve standarde, uslove i želje, ali krajnji rezultat je pokazao više nego što se očekivalo. Naime, ova kuća sagrađena još u 19. veku, a uslovi zahtevaju da svaka nadogradnja izgleda u tradicionalnom stilu malih kuća sa kosim krovom

PROČITAJTE JOŠ: Od nedovršene kuće do najlepšeg doma: 10 ideja za adaptaciju, fasadu i dogradnju na kući (FOTO)

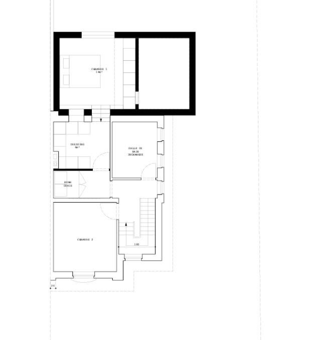
Međutim, projekat je bio i više nego uspešan, pa je na kraju nastala moderna nadogradnja koja je uređena po svim pravilima. U prizemnom delu nadogradnje nalaze se kuhinja i trpezarija, a veći deo zida je zastakljen i gleda na baštu. Krov sa nagibom i stepenice koje su smeštene u glavnom delu kuće daju dodatan prostor, pa se iznad kuhinje i trpezarije nalazi spavaća soba za roditelje, sa prozorom koji takođe gleda na baštu.

PROČITAJTE JOŠ: Da li se više isplati izgradnja zidane ili montažne kuće: evo koja građevina košta jeftinije i duže traje

Nadogradnja ima betonski temelj, dok su zidovi i krov montažni. Fasada je bela i veći deo zidova je urađen u staklenimvratima sa drvenim okvirom, dok je za krov izabran tradicionalni belgijanski crep.

Sve slike ove inspirativne nadogradnje pogledajte u FOTO galeriji!

Izvor: Lepa & srećna

Proširenje za kuću zahteva veliki plan, a mi vam predstavljamo jedan od najfunkcionalnijih i najlepših planova za nadogradnju! Foto: LepaiSrecna