Poštovana gospođo Petronijević, 

Pošto smo pred useljenjem u stan čiju vam skicu šaljemo, želeli bismo da dobijemo vaš savet u vezi sa preuređenjem kojim bismo postigli odvojen prostor za spavanje. 

Unapred zahvalni,
Radovići, Beograd 

Poštovani Radovići, 

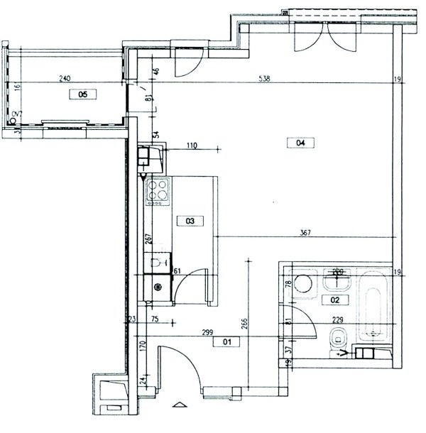
Da biste dobili veću širinu stana, prvo je potrebno kuhinju prebaciti na zid kupatila. 

Na maloj površini i ovakvoj konfiguraciji stana možete dobiti zaista mali odvojeni deo za spavanje. Da se ne biste osećali klaustrofobično, mogu se napraviti otvori u zidovima spavaćeg dela, s venecijanerima ili dekorativnim zavesama, draperijama i sl. Takođe, deo gde je predviđen TV može biti samo šira komoda s televizorom koji se može okretati i ka krevetu. Kako će biti odvojen krevet, zavisi od toga u kojoj meri želite da ga sakrijete. Poželjno je da se vrata ka terasi okrenu, to jest da se otvaraju na drugu stranu radi lakše komunikacije s terasom i trpezarijom. 

Naše rešenje možete pogledati u galeriji ispod teksta.

Olivera Petronijević,
vlasnica studija MSPRO za projektovanje,
dizajn i završne radove u građevinarstvu

Izmeštanjem kuhinje na stranu kupatila oslobađa se mesto za zasebni kutak za spavanje.  Foto: LepaiSrecna