Poštovana gospođ o Petronijević,
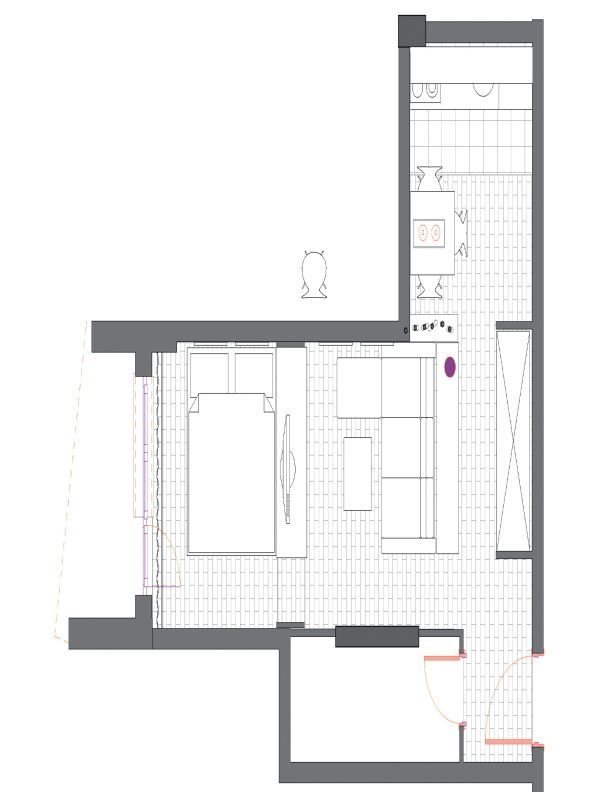
Molim vas za savet kako da namestim sobu u garsonjeri da bih dobio spavaći i dnevni deo. Soba ima 18 metara kvadratnih. Imao sam zamisao da dnevni deo nastavim iz kuhinje i da ga policom odvojim od spavaćeg dela, ali u tom slučaju ne znam gde da smestim plakar. Terasu ne bih da zatvaram.
Hvala unapred,
Milutin
Poštovani Milutine,
Za veoma nepovoljnu formu stana zaista je jedino rešenje da se polutransparentnom pregradom odvoje spavaći deo i dnevni boravak formiran u unutrašnjem delu sobe. Plakar možete postaviti na zid kod ulaza.
Postavljanjem gipsanih zidova sa obe strane plakara dobicete manji ulaz i odvojiti kuhinju kao zasebnu celinu. Plakar bi trebalo da ima frontove od ogledala, delimicno peskiranog, ili svetle površine visokog sjaja, one koje reflektuju svetlost.
Uz leđa troseda možete postaviti užu i relativno nisku komodu. Između trpezarijskog dela i dnevnog boravka poželjna je takođe transparentna pregrada, koja jasno odvaja celine.
Trpezarijski sto trebalo bi da je manjih dimenzija, s mogucnošcu eventualnog proširenja. Kontrastna boja zida u ovom slucaju bila bi korisna jer povezuje sve celine i daje dubinu. Sve ostalo treba da bude svetlih boja.
Tekst: Olivera Petronijević, vlasnica studija MSPRO za projektovanje, dizajn i završne radove u građ evinarstvu
AKO TEKST ČITATE PREKO MOBILNOG TELEFONA, SKICU POGLEDAJTE U FOTO-GALERIJI!
Izvor: Lisa/Moj stan
