Poštovana gospođo Petronijević,

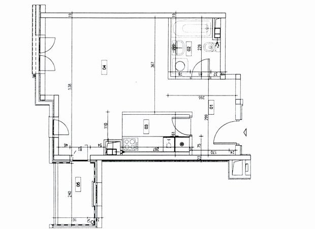
Pošto smo pred useljenjem u stan čiju vam skicu šaljemo, želeli bismo vaš savet u vezi sa preuređenjem kojim bismo dobili odvojen prostor za spavanje. 

Hvala unapred,

Milićevići, Beograd

PROČITAJTE JOŠ: Savet stručnjaka za adaptaciju stana: podela veće sobe za udobniji život porodice (SKICE)


Pošovani Milićevići,

Da biste proširili stan, prvo treba da kuhinju premestite pored kupatila. Na tolikoj površni i takvoj konfiguraciji stana možete dobiti zaista mali odvojeni deo za spavanje. Da se ne biste osećali klaustrofobično, možete napraviti otvore u zidovima spavaćeg dela, s venecijanerima ili dekorativnim zavesama, draperijama i slično.

PROČITAJTE JOŠ: Savet stručnjaka za uređenje stana: bračna spavaća soba sa odvojenim prostorom za bebe

Takođe, u delu gde je predviđen TV dovoljna je šira komoda sa televizorom koji se može okretati po potrebi. Kako će biti odvojen krevet, zavisi od toga u kojoj meri želite da ga sakrijete. Poželjno je da vrata za terasu okrenete, tojest da se otvaraju na drugu stranu radi lakše komunikacije terase i trpezarije.

PROČITAJTE JOŠ: Saveti stručnjaka: funkcionalni raspored za dnevni boravak, trpezariju i kuhinju (MINI PULT KAO PREGRADA + SKICA)

SVE SLIKE I SKICE REŠENJA ZA ZASEBAN SPAVAĆI DEO POGLEDAJTE U FOTO GALERIJI! 

Olivera Petronijević, dip.inženjer arhitekture

vlasnica studija MSPRO za projektovanje, 

dizajn i završne radove u građevinarstvu

Izvor: Lisa / Moj stan 

Odvojen kutak za spavanje je neophodan čak i u jednosobnom stanu! Evo rešenja kako da oslobodite prostor za zaseban spavaći deo... Foto: LepaiSrecna