Poštovana gospođo Petronijević,
U ovom stanu stanujemo moj suprug i ja. Desno od ulaza se nalazi kuhinja. Volela bih, ako je to moguće, da nekako odvojim prostor za spavanje. U obzir dolazi sve, i menjanje nameštaja i pregrade i bilo šta što mi predložite, samo da bude komfornije.
Hvala unapred,
Mirjana Perišić
Poštovana Mirjana,
Ako je moguće da terasu zatvorite i pripojite stambenom prostoru, dobili biste prostor za trpezarijski sto, što bi olakšalo organizaciju sobe koja treba da se podeli na spavaći i dnevni deo, a i da omogući neometanu komunikaciju s kupatilom.
Na Vašoj lokaciji to nije jednostavno, ali ako je terasa okrenuta ka dvorištu, a čini mi se da je to slučaj, možda možete da dobijete potrebnu dozvolu za to. U tom slučaju se pregrađivanjem sobe dobija spavaći deo, s radnim stolom u njemu. Ka kupatilu je odvojen kliznim vratima, a za obezbeđivanje kakvog-takvog protoka vazduha, prema dnevnom boravku je postavljen prozor, koji se može enterijerski obraditi da deluje prijatnije (ogledalo, venecijaneri, dekorativne zavese i sl). Može se smestiti i uzan plakar uza zid dnevne sobe.
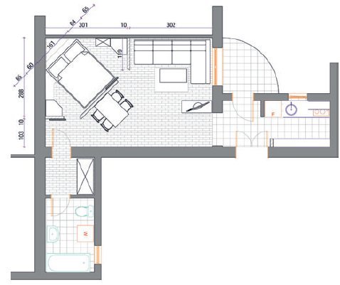
U slučaju da povećanje stana na račun terase nije moguće, pregrađivanjem po dijagonali mogli biste da dobijete manji trpezarijski deo u sastavu dnevnog boravka. U spavaći deo se ulazi sa obe strane kreveta, a zid koji ga odvaja od spavaće sobe jeste neka vrsta paravana s kliznim vratima (bilo bi dobro da su u punoj visini zida).
Svaka strana može da dobije po meri pravljene plakare, komode i sl. U okviru tog nameštaja može se smestiti i manji radni sto sa bibliotekom. Na tržištu se može naći više modela TV polica koje imaju korektno rešenu zadnju stranu, a mogu se praviti i po meri. Kuhinja bi mogla biti funkcionalnija ako se promeni raspored i doda radni element na suprotnom zidu od prozora, ali dubine ne veće od 30 cm. U okviru tih elemenata može da bude i manji pult, zatim do plafona zatvoren deo sa funkcijom ostave ili radna površina iznad koje mogu biti police ili viseći elementi.
dipl. ing. arh. Olivera Petronijević,
vlasnica studija MSPRO za projektovanje,
dizajn i završne radove u građevinarstvu
