Poštovani Željko,

Kupila sam stan od 37,5 m2. S obzirom na to da ćemo u njemu živeti moja ćerka (20 godina, student), sin (10 godina, osnovac) i ja, molim vas da mi pomognete da stan opremim tako da nam bude udoban i funkcionalan (da svako od nas ima svoj mali prostor).

Snežana Marović, Podgorica

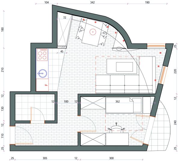
Mala kvadratura, a mnogo zahteva. Ovim predlogom pokušao sam da zadovoljim većinu vaših želja. Levo od ulaznih vrata, na račun kuhinje, formiran je garderobni plakar sa kliznim vratima i ispunom od ogledala. Veća razlika u godinama dece i njihove radne obaveze zahtevaju radoznalost, naročito pri učenju u radu. Ćerka, student, dobila je svoj radni ambijent, odvojen visokom policom od ostalog dela dnevno-trpezarijskog prostora. Sin u manjoj sobi ima svoj krevet i radni sto. Duž zida koji razdvaja dečju od dnevne sobe nalazi se kombinovani plakar sa kliznim vratima. Njegov središnji deo namenjen je televizoru, knjigama i slično, dok su bočni delovi predviđeni za odlaganje garderobe.

Odgovara Željko Grijaković, dizajner i diplomirani inženjer