Poštovana gospođo Petronijević,
U prilogu vam šaljemo skicu dvosobnog stana od 53 m2. U stanu nam je potrebna još jedna sobica, ako je to moguće, koja bi bila dečja - uskoro očekujemo prinovu. Napomena: sve zidove je moguće rušiti i korekcije dolaze u obzir, a ako je moguće, neka kuhinja bude zatvorena.
Unapred zahvalna,
Porodica Ilić, Beograd
Poštovani Ilići,
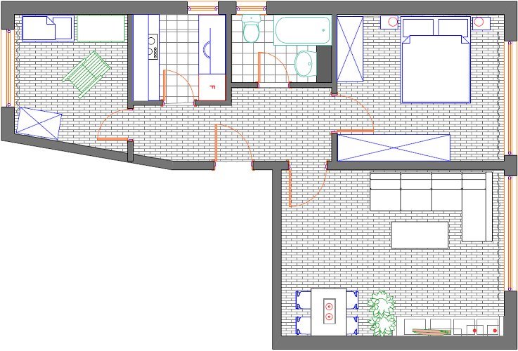
Od sadašnje kuhinje s trpezarijom možete dobiti drugu spavaću sobu. Proširenjem ostave ka hodniku prema unutrašnjosti nekadašnje kuhinje može se dobiti mala, ali funkcionalna kuhinja, koja je odvojena. Uz prozor se čak može napraviti i manji pult za brzi obrok.
Nova soba, koja bi bila dečja, iako nije velika, lako se može opremiti za bebu, a za veće dete može se postaviti krevet na sprat, ispod koga su garderober i sto.
U dnevnoj sobi ima prostora za manji trpezarijski sto, koji po potrebi može i da se produži.
Olivera Petronijević,
vlasnica studija MSPRO za projektovanje,
dizajn i završne radove u građevinarstvu
