Poštovana Olivera,
Planiramo da počnemo renoviranje stana koji je veliki, a u njemu živimo suprug, sin od 8 godina i ja. Imamo nekoliko pitanja pa vas molim za savete. Ne sviđa nam se što, kada se ulazi u naš stan, prolazite kroz dugačak hodnik kao kroz tunel, a ne znamo da li se isplati rušiti zid između kuhinje i hodnika i da li ćemo time nešto dobiti?
Takođe, pošto nas je troje, da li da povećavamo dnevni boravak na račun radne sobe koju u suštini i ne koristimo, već služi kao velika ostava i garderoba? Planirali smo da povećamo osvetljenje u dnevnom boravku time što bi spojili prozor i vrata od terase u jedna velika staklena vrata.
Sin koristi manju spavaću sobu a mi veću. Da li možda dati njemu veću spavaću sobu vec sada (veoma je druželjubiv i stalno ga posećuju drugovi)? Kako da rasporedimo elemente u kuhinji (a voleli bismo da imamo i veliki dvokrilni frižider)?
Unapred zahvalna,
porodica Andrijašević
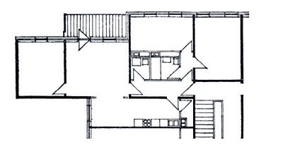
Pre svega, na skici koju ste poslali nemam informaciju o konstrukciji zgrade, pa je pretpostavka da se pregradni zidovi mogu rušiti, ali vam savetujem da pre bilo kakve intervencije to proverite. Zid između kuhinje i hodnika ne isplati se rušiti, jer ako ga nema, morate nečim zatvoriti kuhinju, pultom ili sl. i ta strana će gledati na WC, čime ništa ne dobijate.
Ipak, ako vam to baš smeta, možete da otvorite delimično taj zid i da postavite npr. „luxfer” prizme ili mat staklo. Ali da biste se na to odlučili, prethodno treba da razmislite o kuhinji i hodniku. Kuhinja je dosta velika, ne računajući frižider, možete imati oko 4 m dužine. U stanu nedostaje prostor za odlaganje stvari na ulazu i možda bi bilo dobro da se pojavi upravo na tom mestu.
Takođe, od stila stana i vašeg afiniteta zavisi na koji biste način rešili taj detalj. Na ostavi bi bilo dobro pomeriti vrata kao na skici, da biste mogli bolje da iskoristite prostor. Umesto „harmonika” vrata, možete postaviti klizna ili uža dvokrilna zastakljena vrata.
WC biste takođe mogli učiniti funkcionalnijim, tako što biste mašinu stavili pod ploču sa ugradnim lavaboom i tako dobili i lavabo koji sada nemate. Sobe, kao što vidite, mogu se zameniti i to je dobro, jer će vašem sinu, kako odrasta, biti potreban sve veći prostor, a njegova soba se može namestiti na više načina. Ako se sruši zid između radne i dnevne sobe, dobija se komotan dnevni boravak u koji se može smestiti i trpezarijski sto, a sto u kuhinji može da služi za svakodnevno obedovanje.
dipl. ing. arh. Olivera Petronijević,
vlasnica studija MSPRO za projektovanje, dizajn i završne radove u građevinarstvu
(Beograd, Salvadora Aljendea 18/3)
