Poštovani Željko,
Mi smo četvoročlana porodica, suprug (35 godina), ja (34), sin (5) i ćerkica (9 meseci). Živimo u stanu koji se nalazi u potkrovlju, površine 72 m2. Molim vas da mi predložite rešenje sa postojećim rasporedom prostorija, bez izmena ako je moguće, sa uredjenjem dečje sobe za dvoje budućih školaraca.
Violeta Mikarić, Kruševac
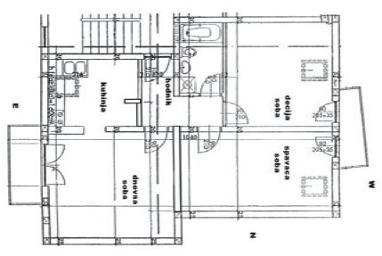
Predloženo rešenje prema vašoj želji ne zahteva bilo kakve izmene zidova i instalacija, sem malog zahvata otvaranja zida izmedju predsoblja i kuhinje, da bi se obezbedio direktan ulaz iz hodnika.
Predlog dečje sobe je predvidjen za blisku budućnost, s obzirom na to da ćerkica verovatno sada spava u svom krevetu u vašoj spavaćoj sobi. Tu su dva kreveta sa fiokama, dva garderobera, komoda za TV sa fiokama i policama i dva radna stola u obliku četvrtine kruga, podeljena niskom pregradom (oko 20 cm).
Iznad stolova, celom dužinom zida, mogu da se montiraju police za knjige i slično.
Željko Grijaković, dizajner i diplomirani inženjer

