Obraćam vam se u želji da mi uz vašu stručnu pomoć i vašim predlogom pomognete da svoj jednoiposoban stan veličine 42 m2 učinim prijatnim i funkcionalnijim.
Slavica Krkalović, Beograd
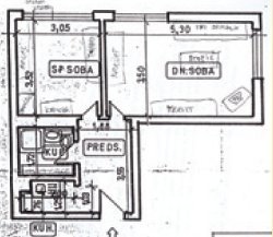
Desno od ulaza možete postaviti cipelar pored koga bi se nalazio zamrzivač, s obzirom na poziciju kuhinje. Kupatilska vrata bi trebalo zameniti dvokrilnim kliznim vratima tako da možete smestiti mašinu za veš (60 x 60 x 85 cm). U većoj sobi nalazio bi se sto (trodelni) i dva garderobna plakara sa kliznim vratima. Centralni deo između plakara bila bi komoda za TV. U maloj sobi imate prostora za garderobni plakar (klizna vrata), dvosed, dve fotelje na razvlačenje, klub sto (dva komada).
Desno od ulaza možete postaviti cipelar pored koga bi se nalazio zamrzivač, s obzirom na poziciju kuhinje. Kupatilska vrata bi trebalo zameniti dvokrilnim kliznim vratima tako da možete smestiti mašinu za veš (60 x 60 x 85 cm). U većoj sobi nalazio bi se sto (trodelni) i dva garderobna plakara sa kliznim vratima. Centralni deo između plakara bila bi komoda za TV. U maloj sobi imate prostora za garderobni plakar (klizna vrata), dvosed, dve fotelje na razvlačenje, klub sto (dva komada).
Odgovara: Željko Grijaković, dizajner i diplomirani inženjer

