Poštovana gospođo Petronijević, 

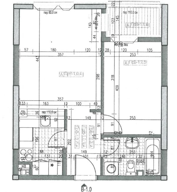
Molim vas da mi pomognete da uredim stan u koji uskoro treba da se uselim. Stan ima 40 m2, a u njemu ću živeti sam, za sada. Voleo bih da deluje što prostranije. Umesto trpezarijskog stola voleo bih da imam samo pult i komotan dnevni boravak. Takođe, ako možete, predložite mi kako da rešim garderobnih ormana, jer mi se čini da nema mnogo mesta za njih. Prozor u spavaćoj sobi je pomeren ka desnom zidu, a ne kao na crtežu koji sam dobio, ostalo je isto.

Unapred hvala, Marko Đrođević   

Poštovani Marko, 

Da bi se dobio prostraniji izgled stana, trebalo bi skinuti vrata ka kuhinji i skratiti zid između vrata i postojećeg parapeta za pult do visine pulta. Tako biste dobili manje zatvoren pogled prema dnevnom boravku i iz njega prema kuhinji. Takođe, u ovoj situaciji bolje bi bilo da se premesti sudopera na bočni zid, tako da ispod pulta imate samo radnu površinu. Mogli biste spustiti plafon u širini dela koji pripada pultu, a niše na zidu pored bile bi dekorativni element koji vizuelno vertikalno ograničava taj prostor. 

Zaista nemate mnogo mesta za garderobere, pa predlažem da nasuprot vrata spavaće sobe postavite ugaoni plakar za vešalice, a pored prozora plakar s policama u gornjem delu i fiokama u donjem. Taj plakar ne treba da ima veću dubinu od 40-45 cm. Takođe i prostor u dnevnom boravku može se iskoristiti za smeštanje raznih stvari. Za ovako mali prostor bitno je da je nameštaj kompaktan i svedenih linija. 

Pogledajte u galeriji slika skice na koji način da uredite vaš mali prostor.

Olivera Petronijević,
vlasnica studija MSPRO za projektovanje,
dizajn i završne radove u građevinarstvu

Izvor: Lisa / Moj stan

I mali stanovi mogu biti komforni i lepo sređeni uz dobar raspored nameštaja. Pročitajte kako to da postignete... Foto: LepaiSrecna